التصميم الإنشائي للفيلا رقم 1 في المملكة العربية السعودية

عن المشروع :

اسم المشروع : التصميم الإنشائي للفيلا رقم 1 في المملكة العربية السعودية
تفاصيل المشروع : التصميم الإنشائي للفيلا رقم 1 في المملكة العربية السعودية

وصف المشروع :

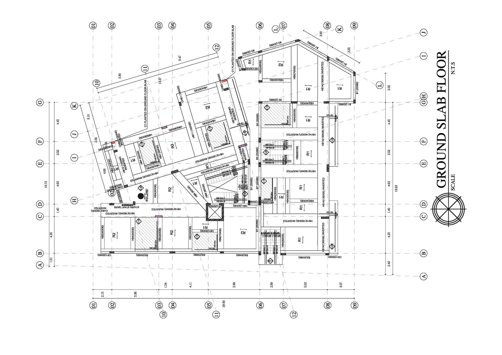
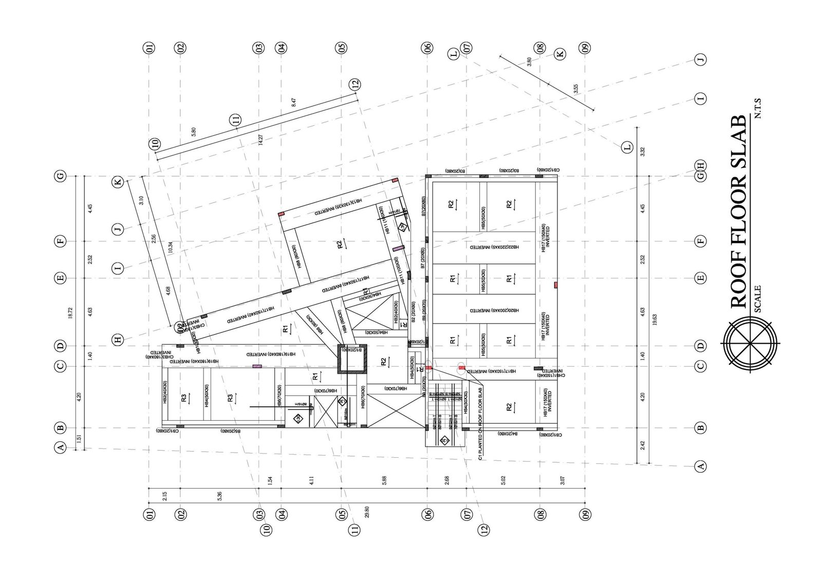
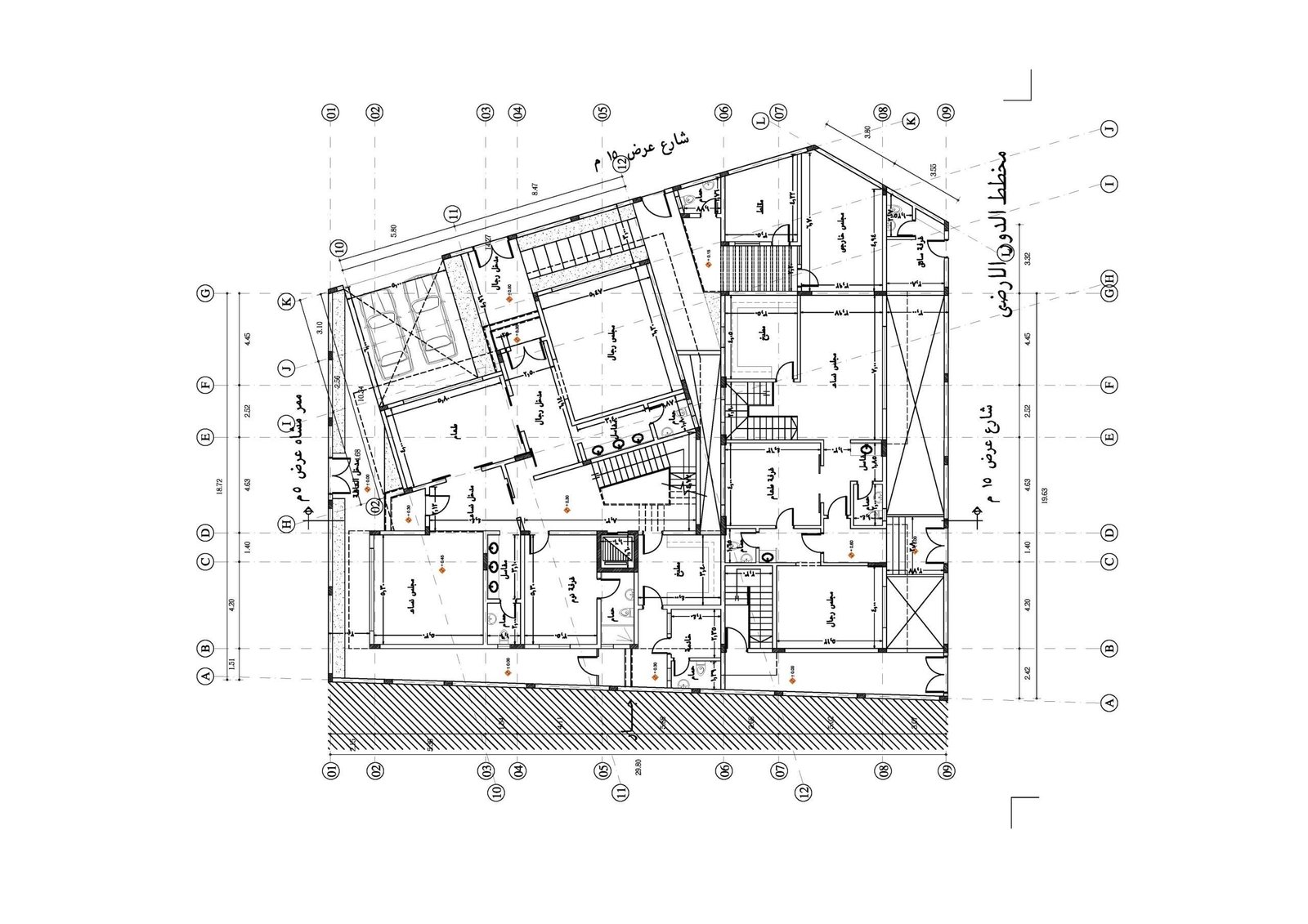
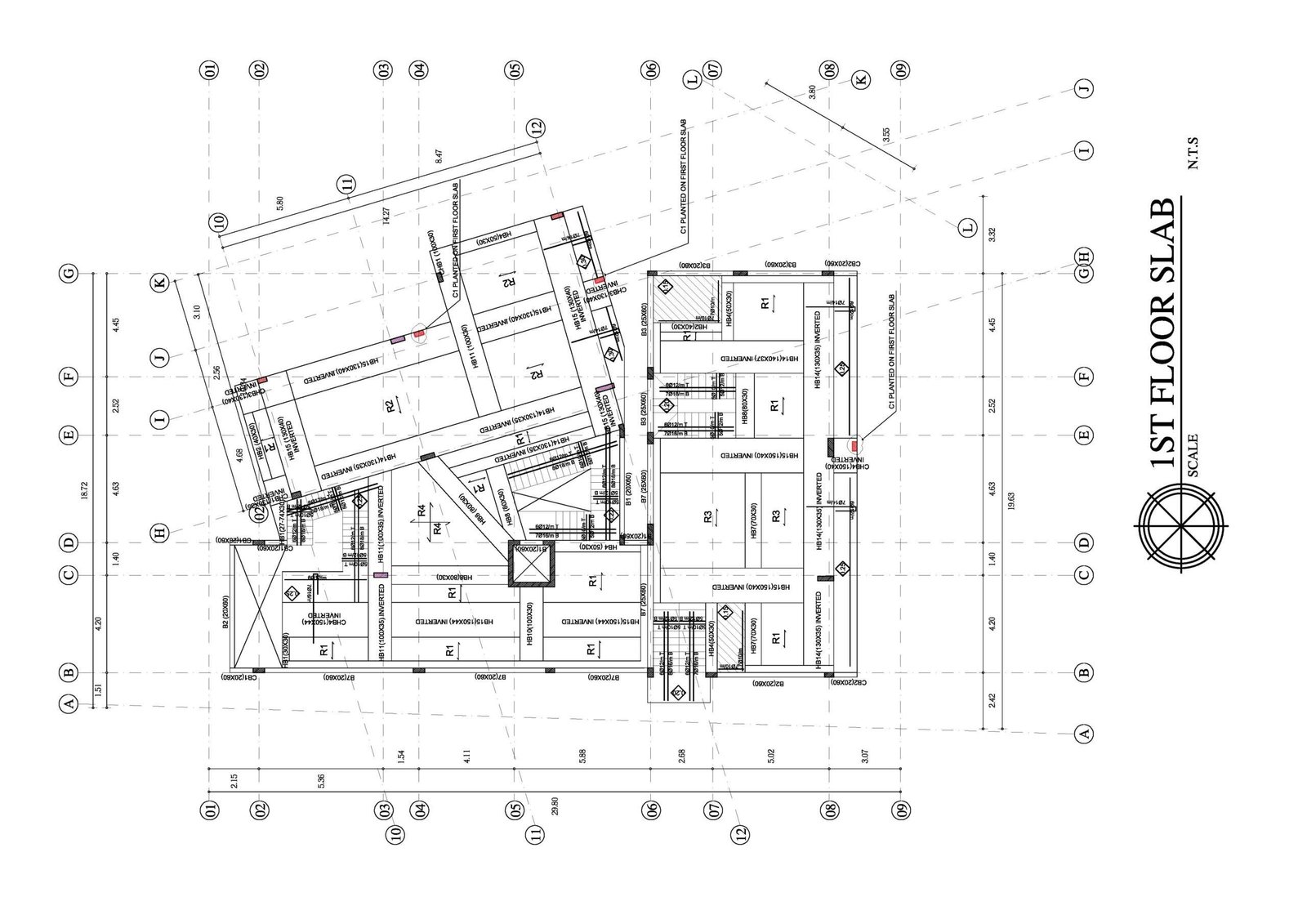
يتضمن هذا المشروع التصميم الإنشائي للفيلا رقم 1 في المملكة العربية السعودية. يركز التصميم على إنشاء هيكل متين ومستقر باستخدام الخرسانة المسلحة والعناصر الفولاذية. تم تصميم الأساس بما يتناسب مع خصائص التربة في الموقع، مما يضمن قاعدة صلبة للفيلا. يشمل التصميم أعمدة وعوارض وألواح خرسانية، توفر الدعم اللازم لتصميم الفيلا مع مراعاة العوامل البيئية المحلية، مثل درجات الحرارة المرتفعة والنشاط الزلزالي. صُممت الفيلا وفقًا لقوانين ولوائح البناء السعودية، مما يضمن السلامة والراحة والاستقرار على المدى الطويل.