تصميم انشائي لفيلا سيد زياد بالاحساء

عن المشروع :

اسم المشروع : تصميم انشائي لفيلا سيد زياد بالاحساء
تفاصيل المشروع : تصميم انشائي لفيلا سيد زياد بالاحساء

وصف المشروع :

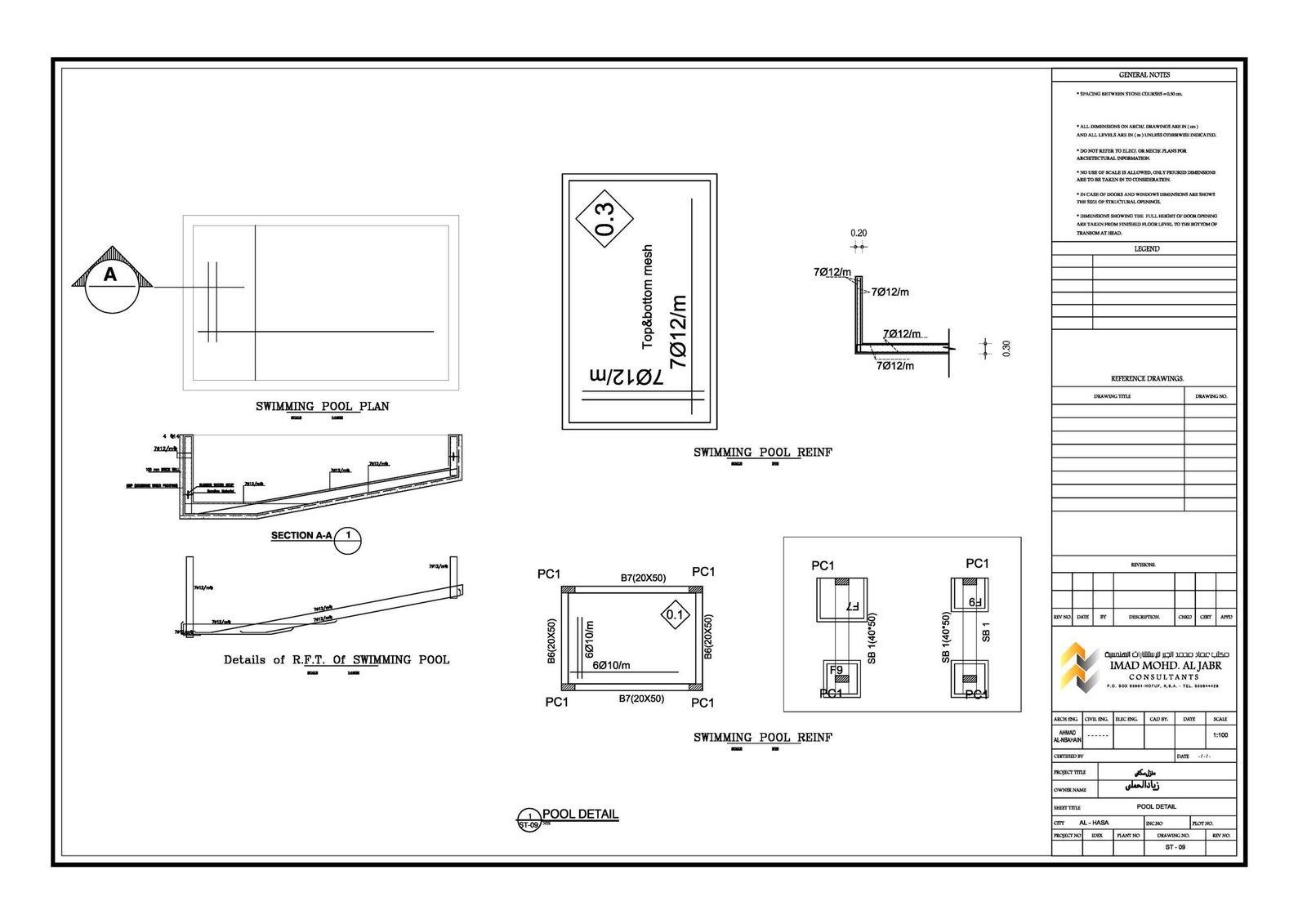
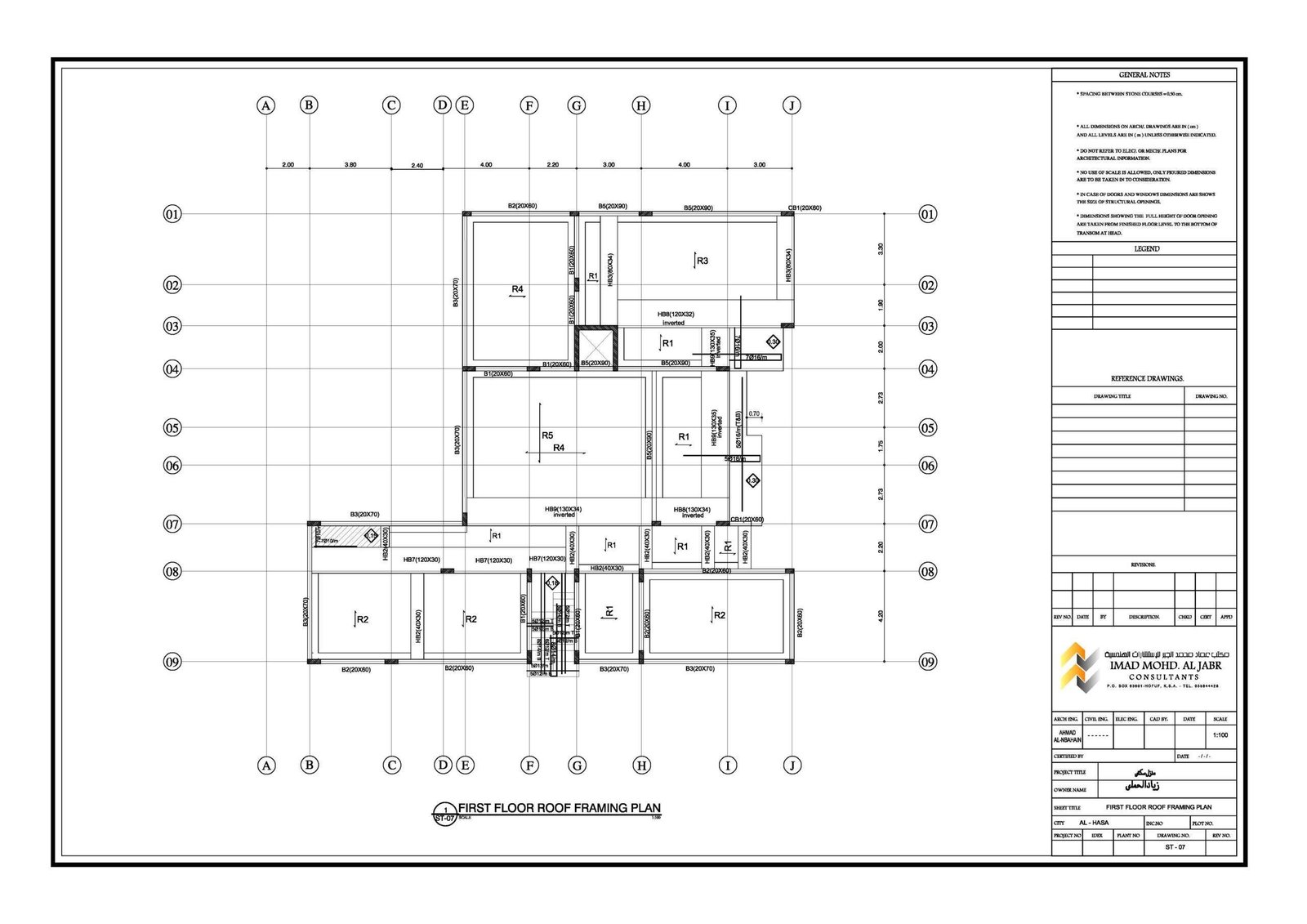
يشتمل التصميم الإنشائي لفيلا السيد زياد على نظام هيكلي من الخرسانة المسلحة، يتضمن أعمدة وعوارض وبلاطات لتحقيق توزيع مثالي للأحمال واستقرار فائق. صُممت الأساسات بناءً على خصائص التربة الخاصة بالموقع، باستخدام قواعد منفصلة أو نظام بلاطة أرضية. رُوعي في تصميم الفيلا بعناية فائقة دعم كلٍ من التصميم المعماري والمتطلبات الوظيفية. يضمن التصميم المتانة والسلامة والراحة، مع الالتزام بقوانين ومعايير البناء المحلية. وقد أُولي اهتمام خاص لدمج العناصر الإنشائية بسلاسة مع جماليات الفيلا وتصميمها العام.