تصميم إنشائي و اشؤاف على فيلا سيد عبدالقادر بالاحساء

عن المشروع :

اسم المشروع : تصميم إنشائي و اشؤاف على فيلا سيد عبدالقادر بالاحساء
تفاصيل المشروع : تصميم إنشائي و اشؤاف على فيلا سيد عبدالقادر بالاحساء

وصف المشروع :

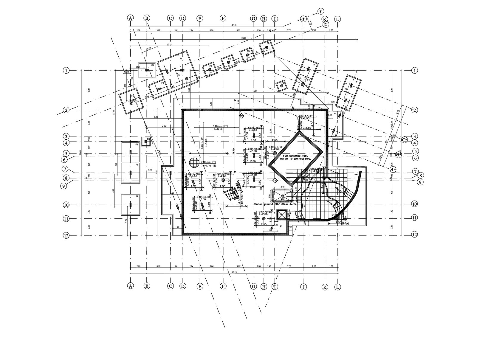
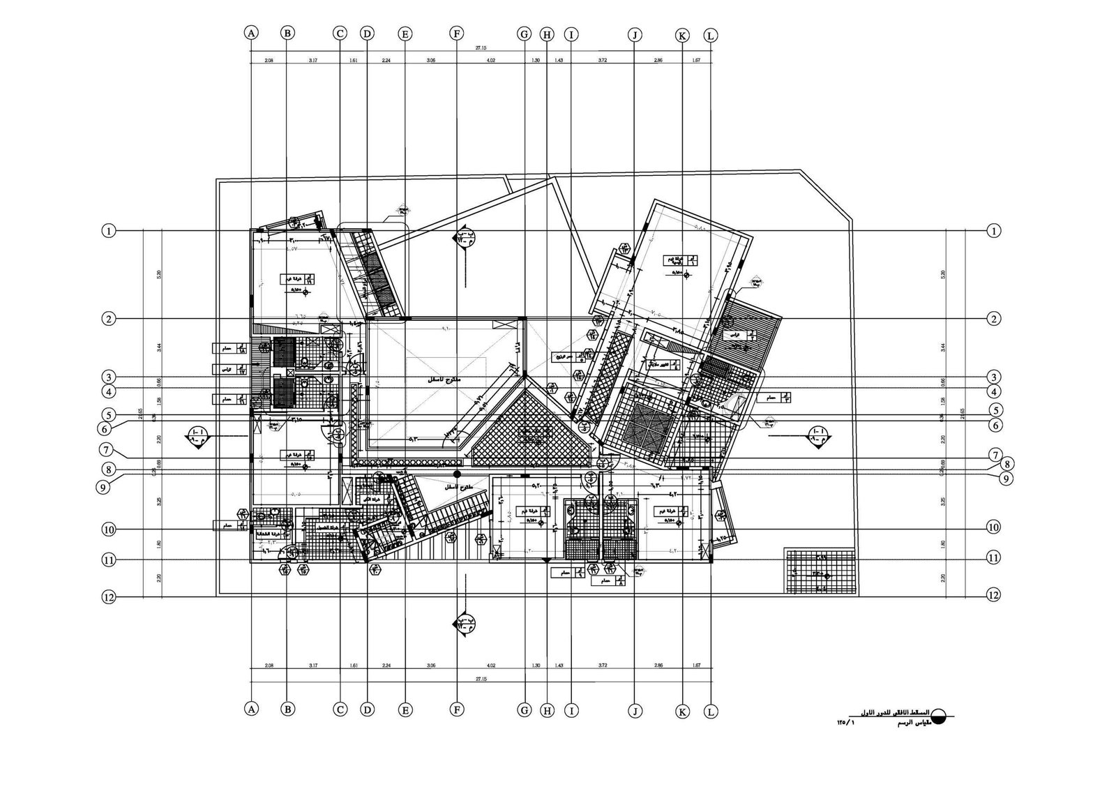
يشمل هذا المشروع تصميم والإشراف على فيلا السيد عبد القادر، مع التركيز على إنشاء مساحة سكنية فاخرة وعملية. يتضمن التصميم هيكلاً خرسانياً مسلحاً مع عوارض وأعمدة وألواح لضمان السلامة الهيكلية والاستقرار. تم تصميم تخطيط الفيلا بشكل مثالي لتوفير مساحات معيشة واسعة، مع مراعاة الإضاءة الطبيعية والتهوية والجمال. خلال مرحلة الإشراف، يتم تطبيق رقابة صارمة على الجودة طوال فترة البناء، لضمان توافق المواد والحرفية ومعايير السلامة مع التصميم. تتم إدارة المشروع لضمان إنجازه في الوقت المحدد مع الالتزام بلوائح البناء المحلية.