Projects Manager Professional
PMP - PE - FE Certified
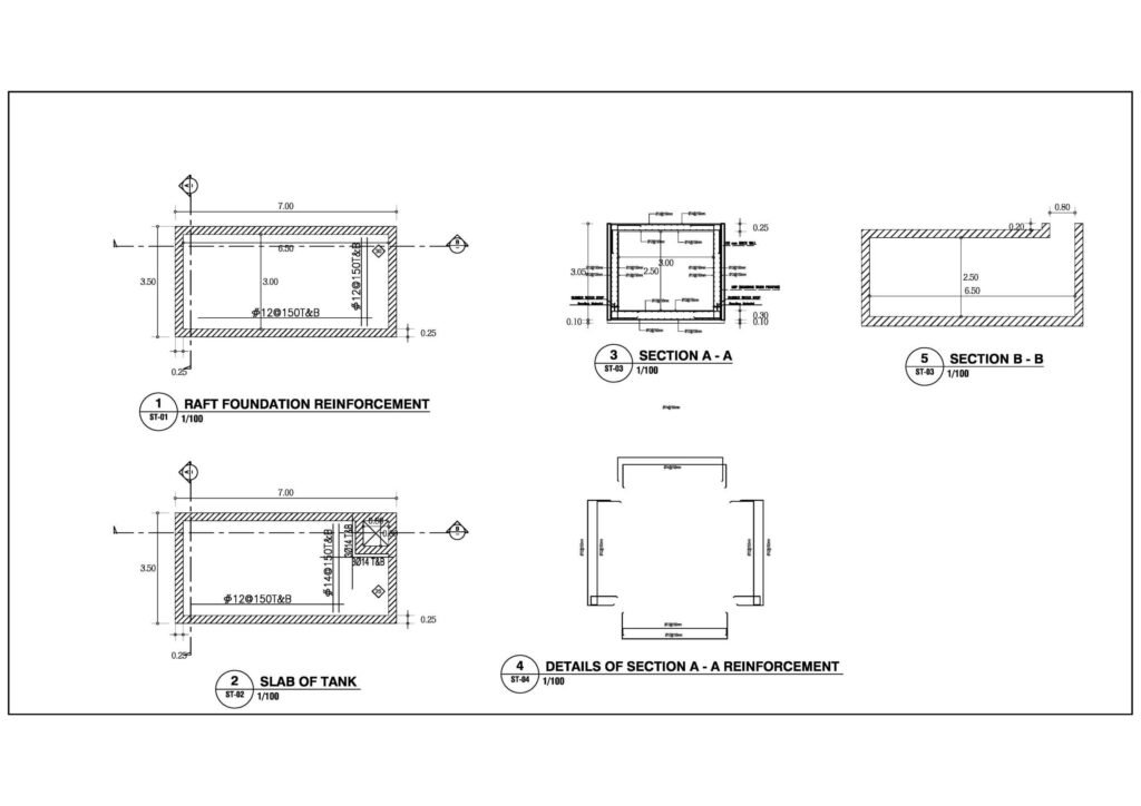
RC Deign Expert
Steel Structure Deign Expert
Construction WSD Expert
Water & Sewerage Network Design
Roads Design
Planning With Primavera Expert
Cost Estimation Expert
Infrastructure Networks WSD Expert
Amro Abouelez
FE, PE & PMP® Certified Design & Technical Engineering Professional Manager with over 18 years of professional experience in structural design of reinforced concrete and steel structures, including Working Stress Design (WSD) and detailed construction drawings. I deliver reliable, code-compliant designs based on deep hands-on field and consultancy experience.Specialized in water supply, sewerage, and road infrastructure design, providing complete technical solutions from concept to IFC drawings. I also offer Primavera P6 project planning and scheduling, as well as accurate cost estimation, BOQs, and quantity take-offs for construction and infrastructure projects.
In addition, I provide construction contract writing, review, and technical clarification, with strong experience in FIDIC-based contracts, scopes of work, technical specifications, and claims-related documentation.
With 18+ years working on real projects, I help contractors, consultants, and developers reduce risk, control cost, and execute projects efficiently through practical, buildable, and well-documented engineering solutions.
Achievements
Years Of Experience
+
0
Certificates
+
0
Projects Management Experience
+
0
Computer Skills
Primavera P6
98%
Revit
95%
WaterGems
90%
SewerGems
90%
Power BI
80%
Autocad
99%
Autocad Civil 3D
90%
Tekla Structure
85%
Autocad Structural Detailing
90%
Etab, Safe & Sap
90%
Microsoft Office
95%
Mathcad
90%
Programing Languges & AI
95%
Languages
Arabic
99%
English
95%
Germany
50%
Certificates
Softwares Used









































