Tarek Residential building 8 stories On Raft

About The Project

Project Name : Architectural & Structural Design of Mr. Tarek Residential building 8 stories On Raft
Project Details : Architectural & Structural Design of Mr. Tarek Residential building 8 stories On Raft

Project Description :

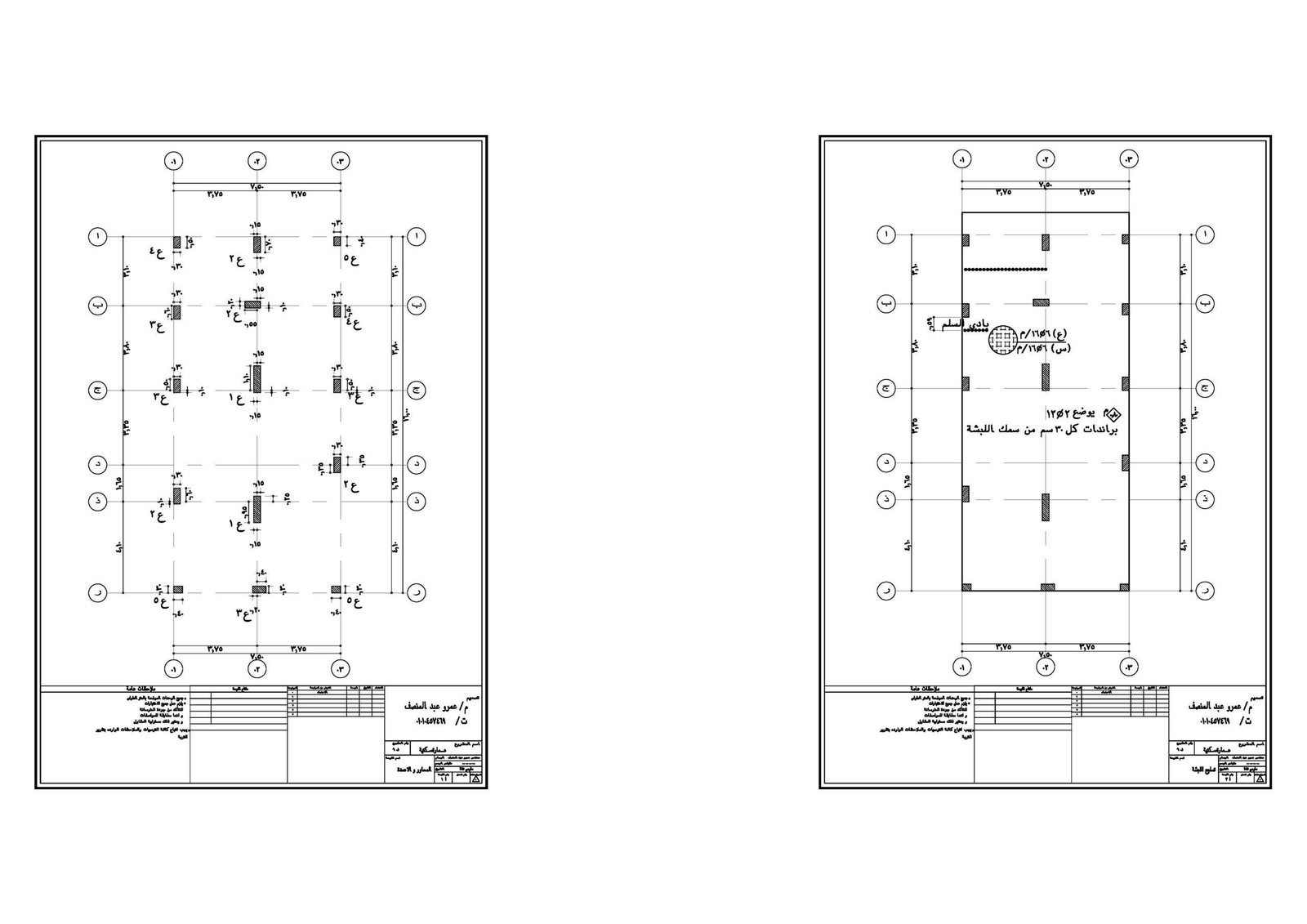
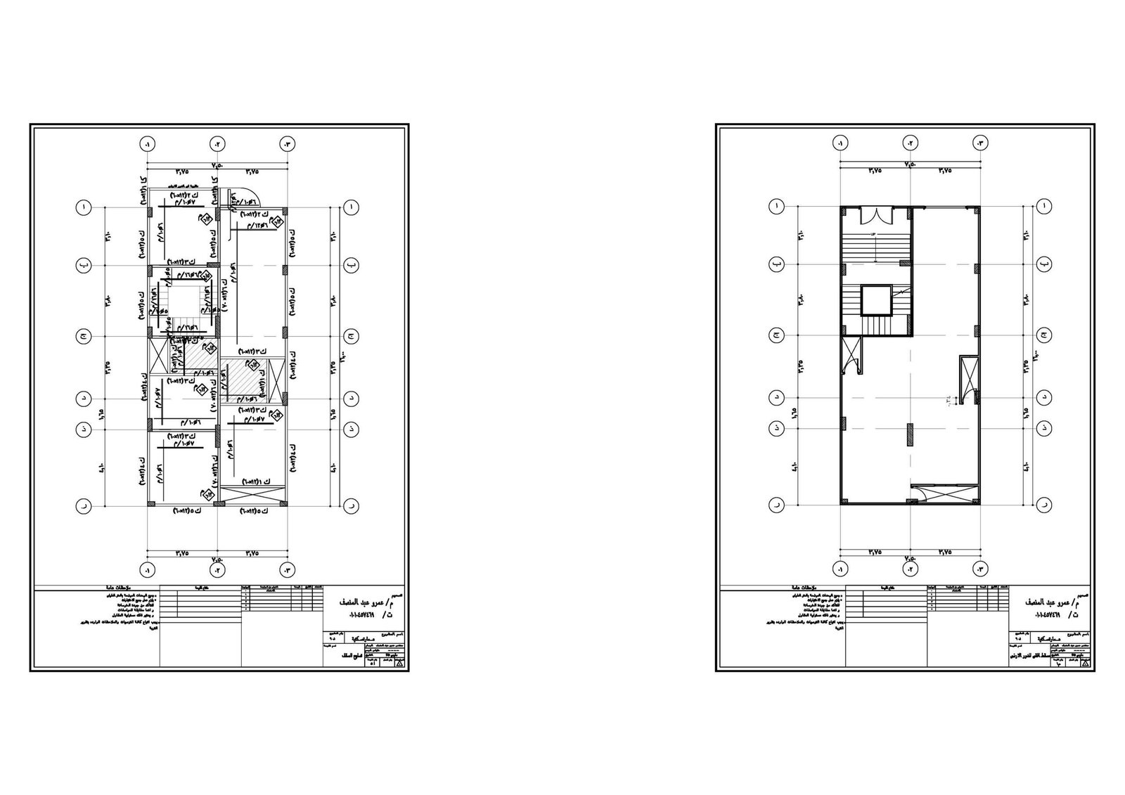
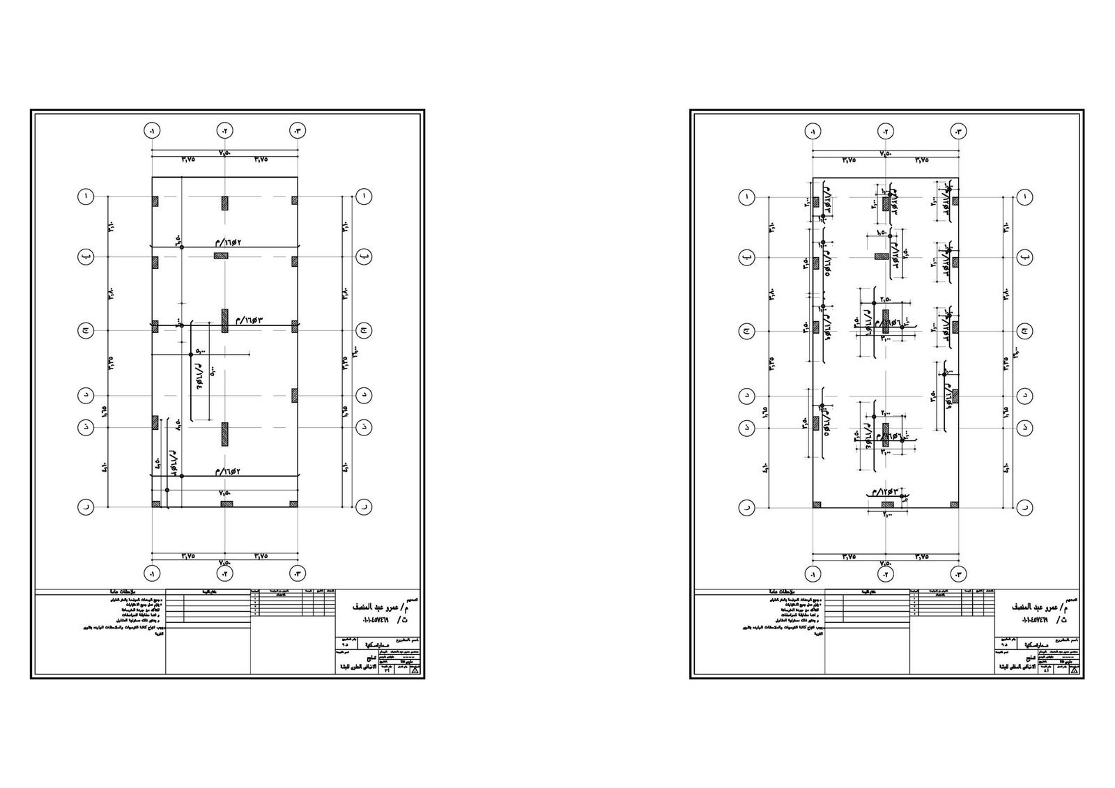
This project involves both the architectural and structural design of an 8-story residential building for Mr. Tarek, supported by a raft foundation. The architectural design focuses on creating functional and aesthetically appealing spaces, including residential units, common areas, and amenities, with attention to layout, natural lighting, and ventilation. The structural design utilizes reinforced concrete for the superstructure, with a raft foundation to distribute the building's load evenly across the soil, ensuring stability. The design complies with local building codes, ensuring safety, durability, and comfort while optimizing space usage and structural efficiency.