Jarallah Compound, Structural Design of Steel Hanger Tent & RC Water Tank

About The Project

Project Name : Jarallah Compound, Structural Design of Steel Hanger Tent & RC Water Tank
Project Details : Jarallah Compound, Structural Design of Steel Hanger Tent & RC Water Tank

Project Description :

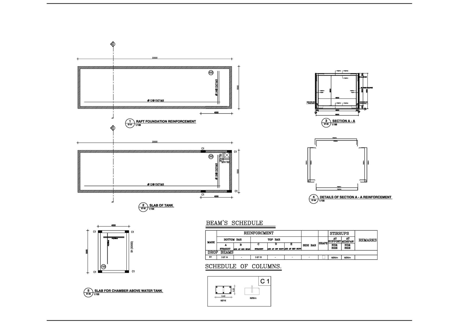
This project involves the structural design of a steel hanger tent and a reinforced concrete (RC) water tank within the Jarallah Compound. The hanger tent is designed with a lightweight steel frame, providing large-span support and flexibility for various uses, while ensuring stability against wind loads typical in the region. The RC water tank is designed with reinforced concrete walls and base to handle the required water storage capacity, with special attention to internal pressure and seismic considerations. Both structures are designed to comply with local codes, focusing on safety, durability, and functionality in the compound’s environment.