Steel Building Design In New York

About The Project

Project Name : Steel Building Design In New York
Project Details : Steel Building Design In New York

Project Description :

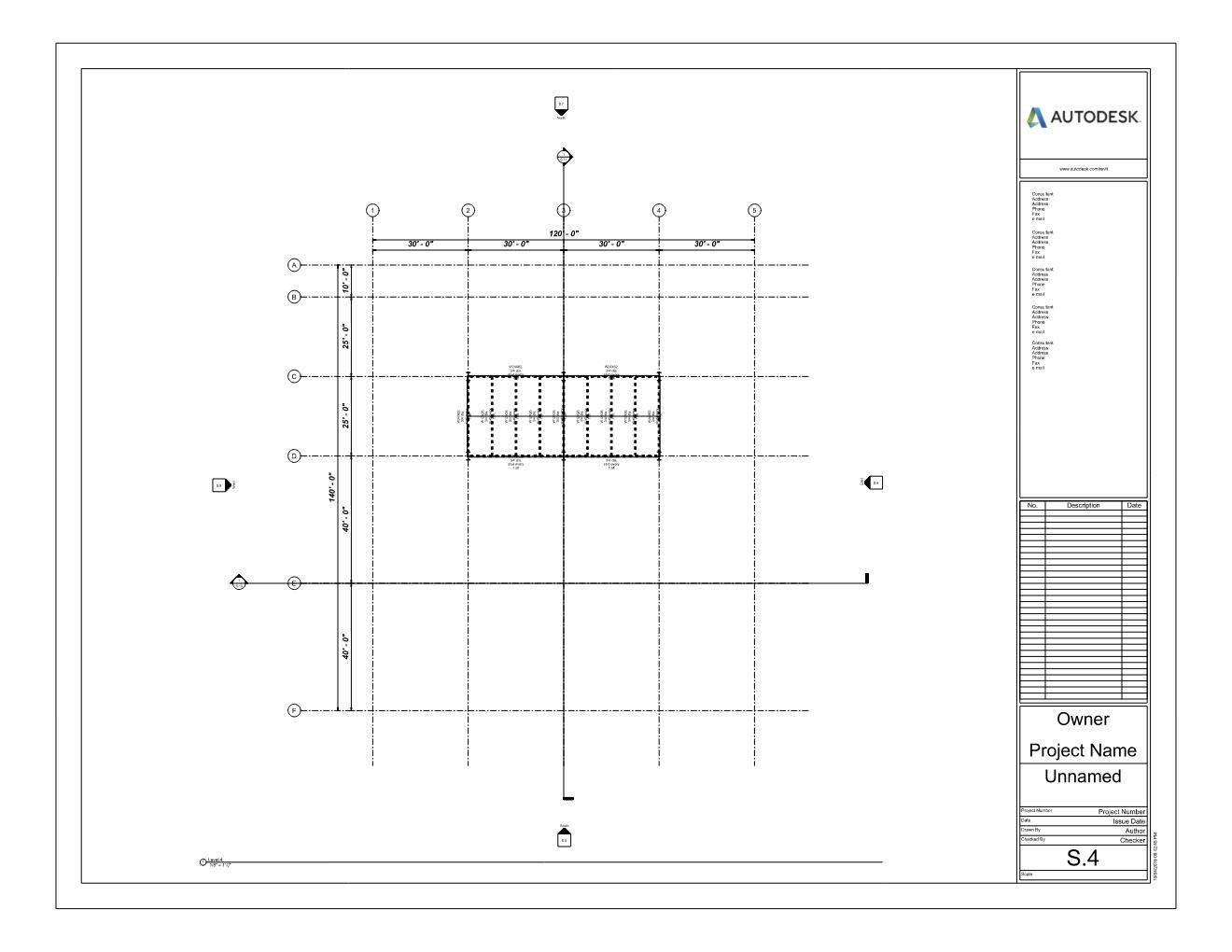
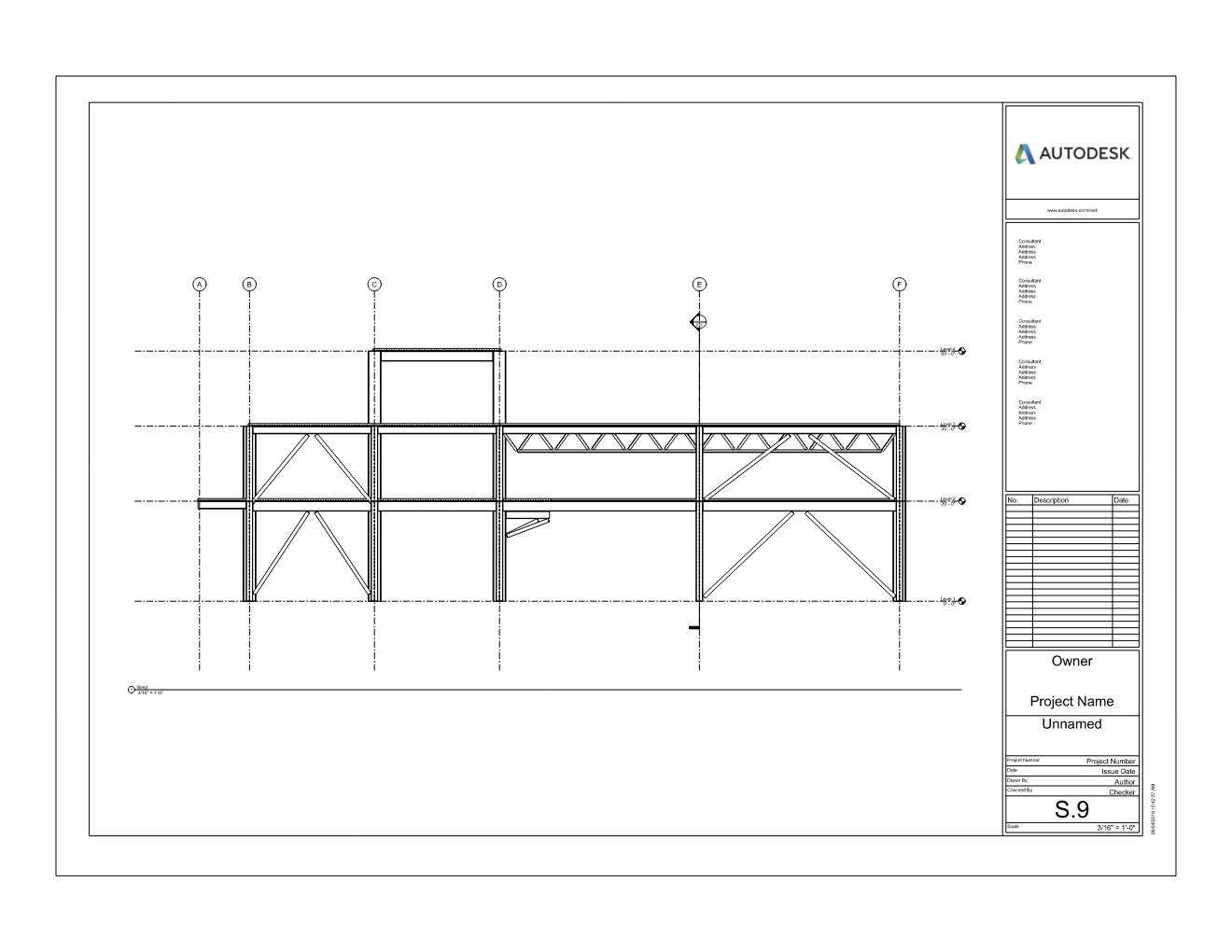
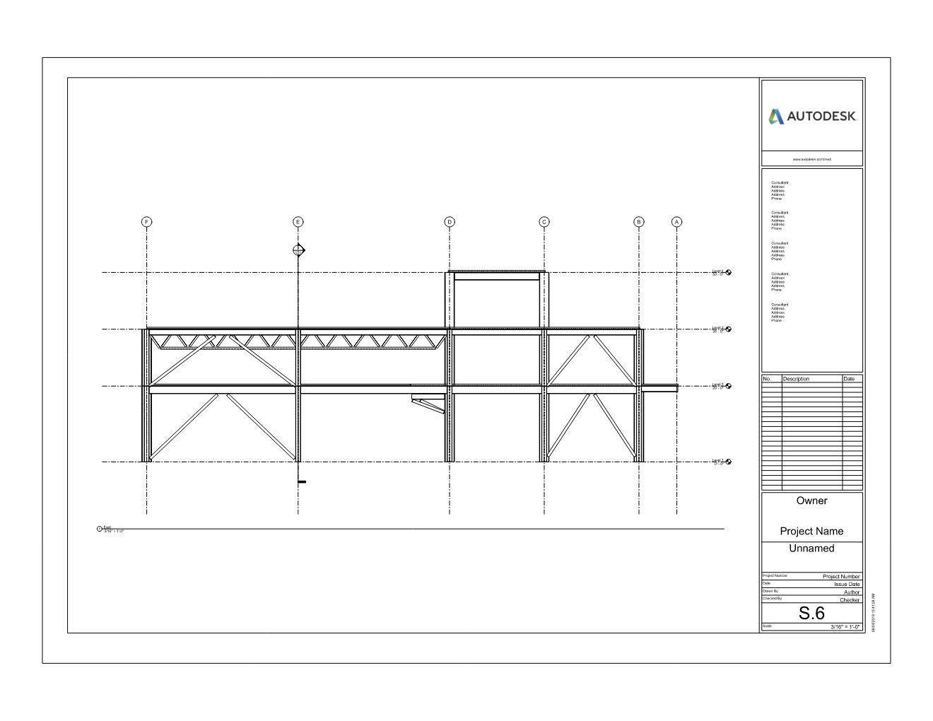
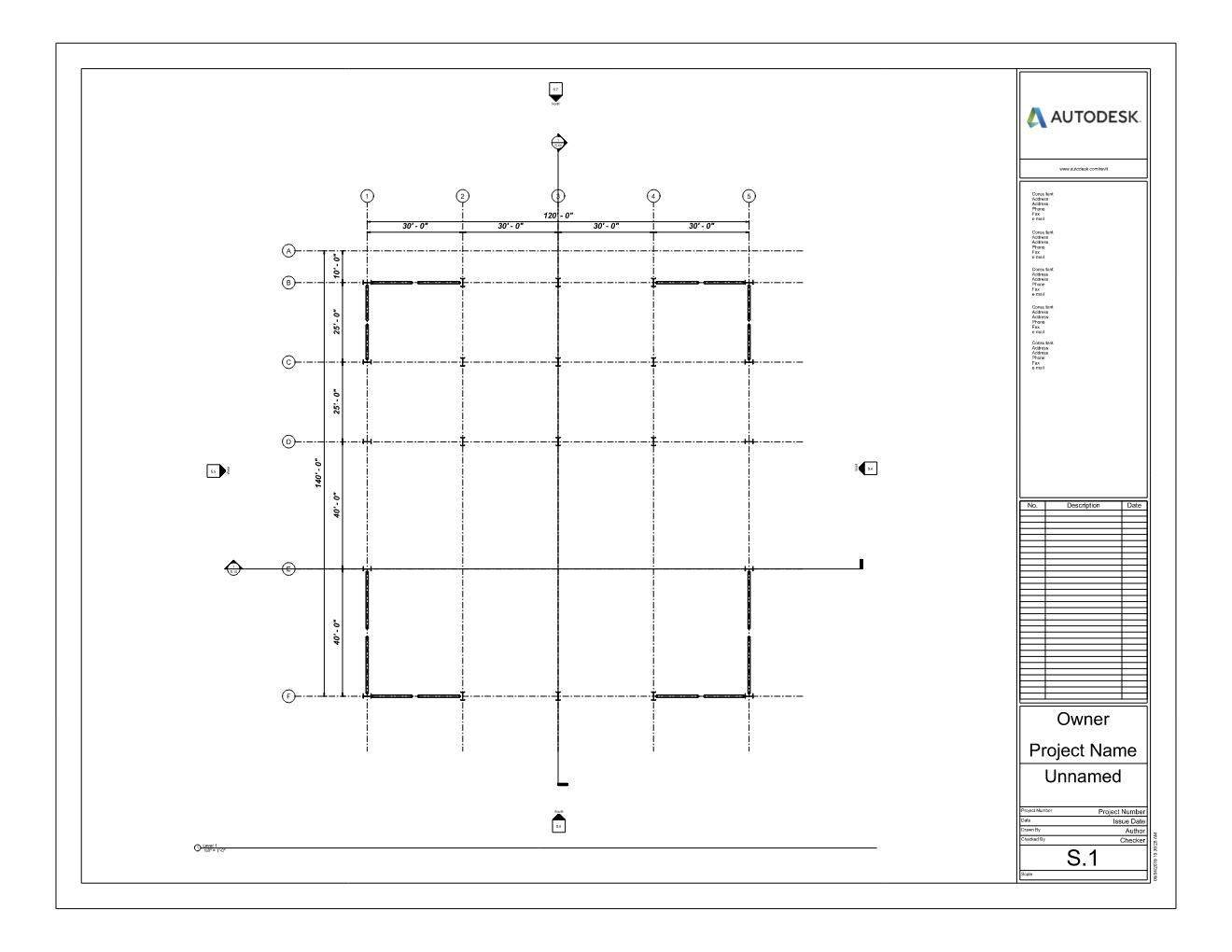
This project involves the design of a steel building in New York, focusing on creating a strong, durable, and efficient structure using steel as the primary material. The design includes a detailed analysis of the building’s load-bearing capacity, including the use of steel beams, columns, and trusses. The building is designed to meet New York's local building codes, including requirements for seismic and wind load resistance. The design also considers sustainability and energy efficiency, with the integration of modern insulation techniques and advanced structural systems. The project ensures both safety and functionality while achieving an aesthetically pleasing design.