Naser Villa Structural Design, Riyadh

About The Project

Project Name : Structural Design of Naser Villa – Riyadh
Project Details : Structural Design of Naser Villa – Riyadh

Project Description :

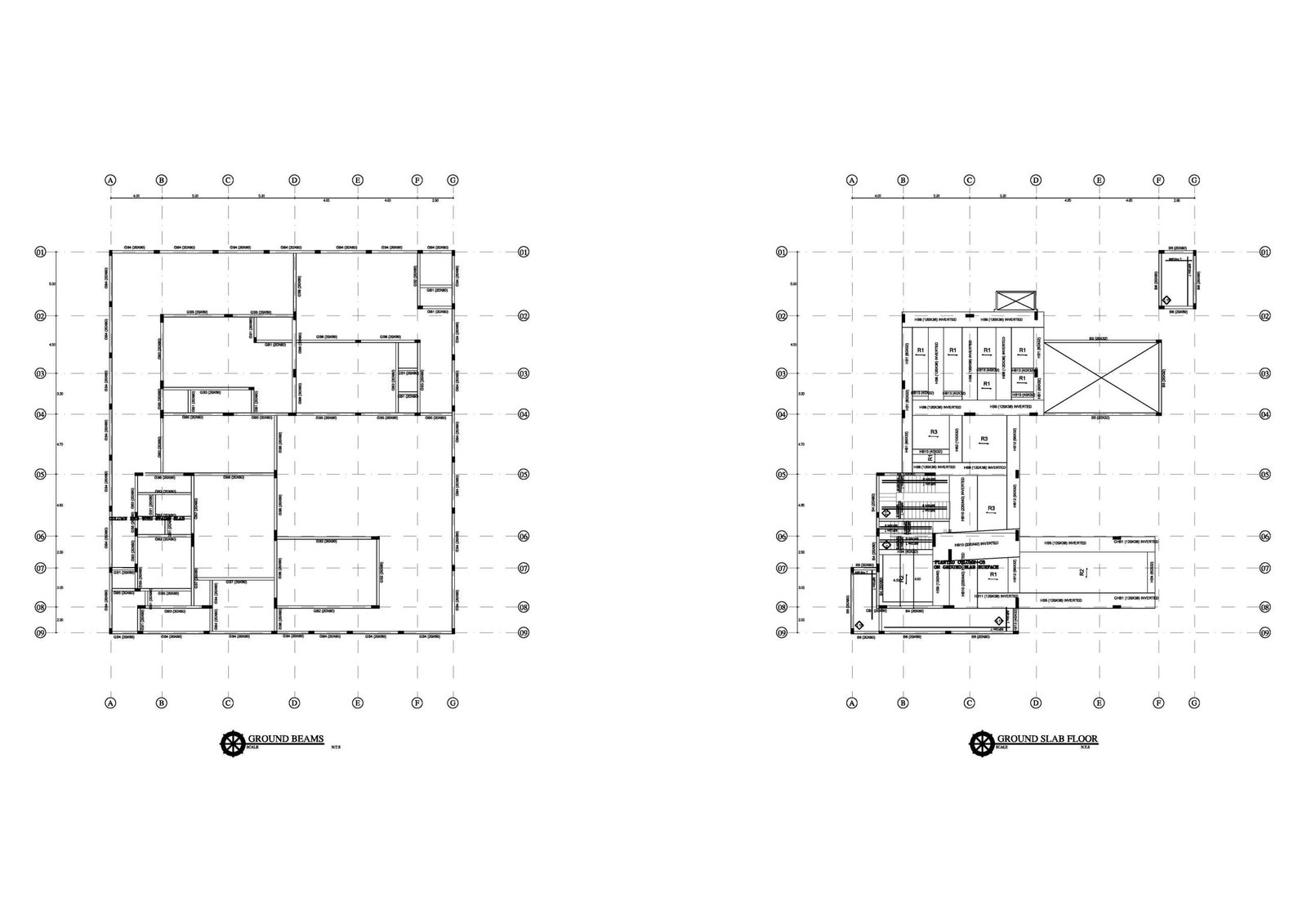
The structural design of Naser Villa in Riyadh focuses on creating a durable and stable foundation and frame system suitable for the local climate and soil conditions. The design includes reinforced concrete columns, beams, and slabs, providing strength to support the villa’s layout. The foundation is customized to the site's soil properties, using isolated footings or a slab-on-grade approach. The structure is designed to handle both vertical and lateral loads, ensuring safety and long-term stability while integrating seamlessly with the villa’s architectural style. The project adheres to Riyadh's local building codes and standards.