Jarallah Compound, Structural Design Of SEPTIC, STORM WATER & BALANCUNG TANKS

About The Project

Project Name : Jarallah Compound, Structural Design Of SEPTIC, STORM WATER & BALANCUNG TANKS
Project Details : Jarallah Compound, Structural Design Of SEPTIC, STORM WATER & BALANCUNG TANKS

Project Description :

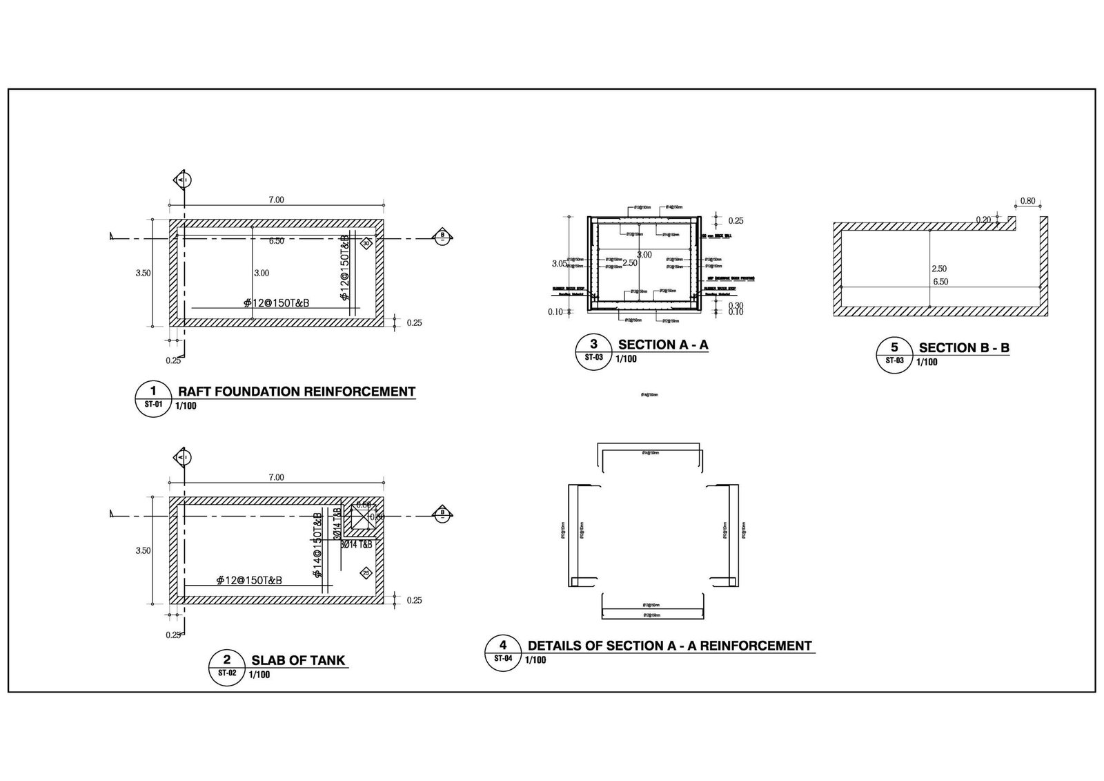
This project focuses on the structural design of septic tanks, stormwater tanks, and balancing tanks within the Jarallah Compound. The tanks are designed with reinforced concrete, ensuring durability and resistance to pressure from surrounding soil and water. The septic and stormwater tanks are designed to accommodate the required storage capacities while maintaining structural integrity under varying loads. The balancing tanks are designed to regulate flow, preventing flooding and ensuring efficient water management. All designs adhere to local codes and environmental considerations, ensuring long-term functionality and safety.