Structural Design of Khalid & ALFan Villa

About The Project

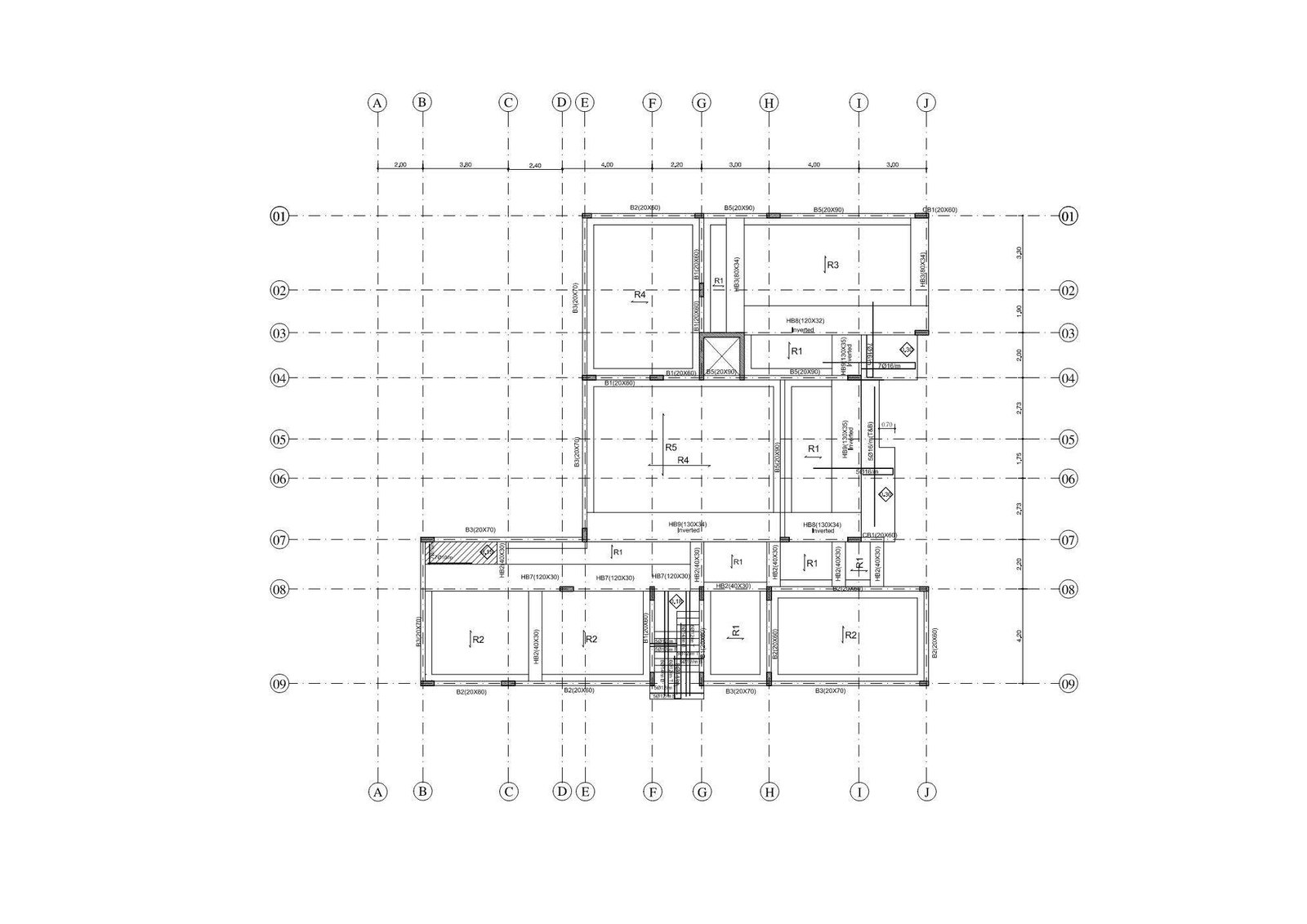
Project Name : Structural Design of Khalid & ALFan Villa
Project Details : Structural Design of a villa include basement, ground floor, first floor & 25% services at roof

Project Description :

The structural design of the villa includes a reinforced concrete basement, supported by strong foundation walls and a solid slab. The ground floor has a concrete slab-on-grade foundation, with beams and columns to distribute loads efficiently. The first floor is supported by reinforced beams and columns, ensuring stability. The roof, designed to hold 25% services, is supported by concrete or steel framing, with drainage and waterproofing for durability. This design ensures the villa’s strength and functionality across all levels.