Steel Structural Design for Vegetables Factory 3

About The Project

Project Name : Steel Structural Design for Vegetables Factory 3
Project Details : Steel Structural Design for Vegetables Factory 3

Project Description :

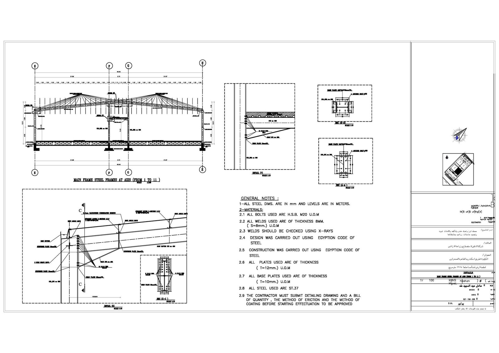
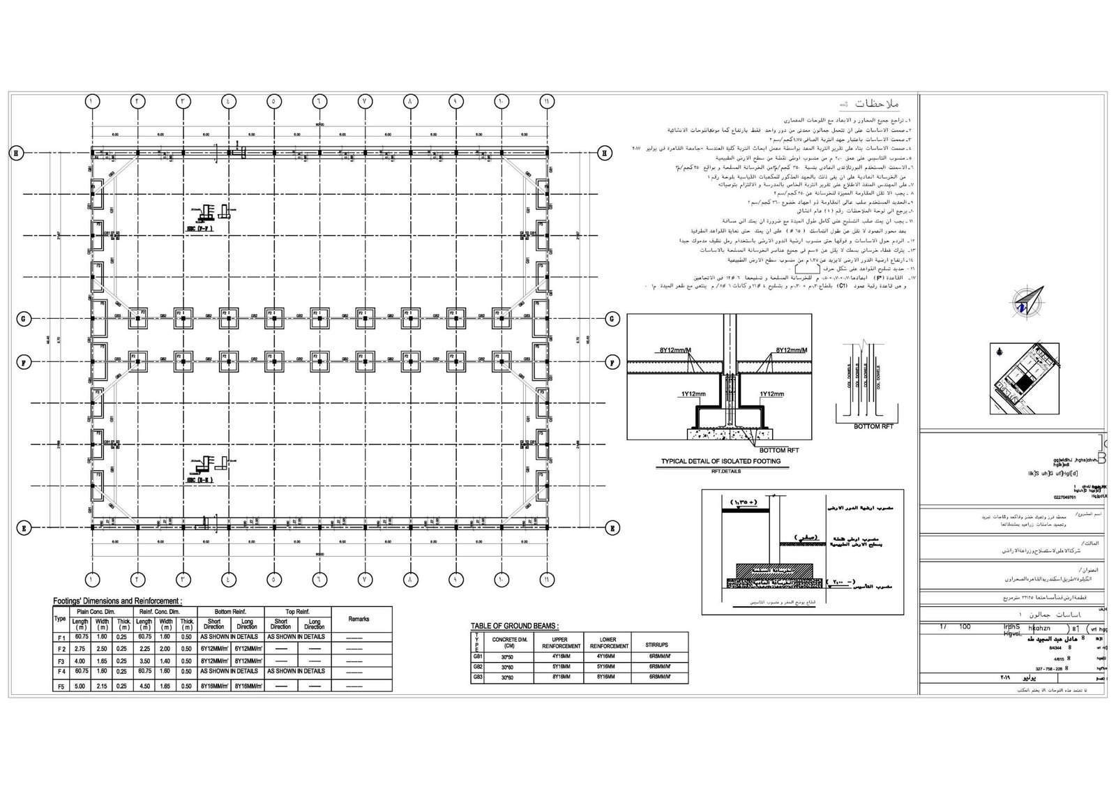
The steel structural design for Vegetables Factory 3 focuses on developing a strong and flexible framework to support the factory's operational needs, including vegetable processing, storage, and packaging areas. The design incorporates reinforced steel beams, columns, and trusses to provide stability and durability for heavy equipment and machinery used in the factory. It also considers the need for temperature-controlled environments, such as refrigerated storage areas, ensuring that the structure can withstand cold storage conditions. The design optimizes space for efficient workflows and ensures compliance with health and safety regulations, energy efficiency, and potential future expansion.